六安市霍邱县长集冷链集配中心项目正式开工

hthvip官网(官方) (1.3万) 发布于:2023-05-25 16:47:46 更新于:2023-05-25 16:47:46 来自:霍邱发布
项目申报

2023年5月24日,霍邱县长集冷链集配中心项目正式开工!

六安市霍邱县长集冷链集配中心项目正式开工

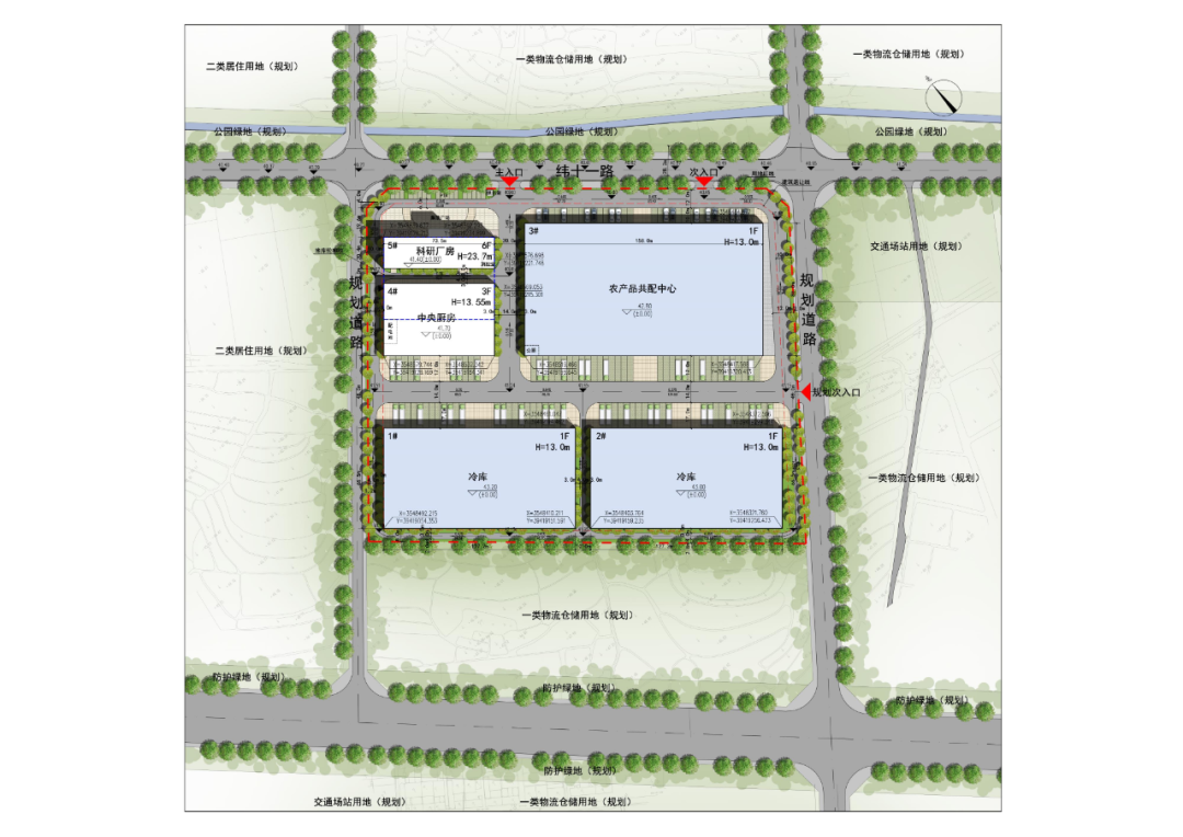
项目位于长集镇纬十一路与进站路交叉口火车站附近,占地100亩,总投资约5.1亿元,总建筑面积5.62万㎡,建设冷库17819㎡,中央厨房10804㎡,农产品共配中心15040㎡,科研厂房13230㎡。项目建成后委托给安徽中邮物流有限公司运营,主营农副产品冷链仓储、物流配送、加工销售、电子商务等。

六安市霍邱县长集冷链集配中心项目正式开工

项目建成后将成为安徽省规模较大的冷链配送基地,对推动霍邱县农副产品冷链物流体系的规范化、标准化建设具有积极的示范带动作用。

THE END

温馨提示:

如有侵权请联系删除邮箱:2942802716@qq.com, 违法和不良信息举报邮箱:hzj@spiderltd.com。
新媒体服务
Baidu
map